Nieuwbouw woonzorgcomplex Overdorp Kockengen

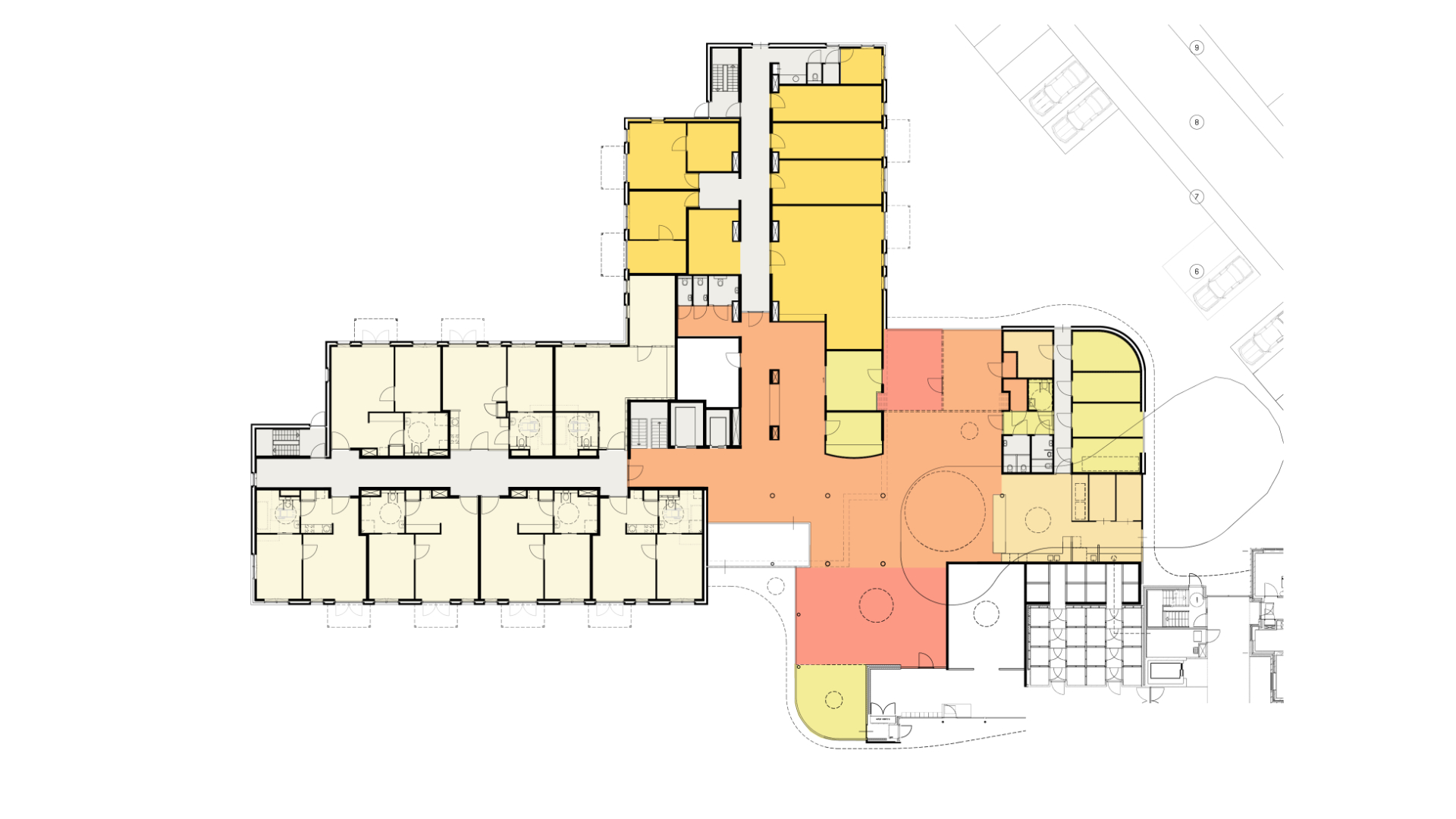
Het bestaande bejaardenhuis Overdorp 2 voldeed niet meer aan de huidige eisen en op dezelfde locatie is een nieuw woonzorgcomplex gerealiseerd met op de 1e verdieping 12 verzorgingsplaatsen en op de 2e verdieping 14 verpleegplaatsen in twee afdelingen. Op de 3e verdieping liggen 5 ouderenwoningen met ieder een royaal dakterras. Naast 7 ouderenwoningen is op de begane grond, in een eigen vleugel, een huisartsenpraktijk met apotheek ingepast.
Het nieuwe complex is verbonden met de bestaande aanleunwoningen, zodat de bewoners binnendoor de nieuwe voorzieningen in de laagbouw kunnen bereiken. Voor de constructie is gekozen voor dragende gevels en langswanden bij
Opdrachtgever
Woningbouwvereniging Kockengen
Omvang
Nieuwbouw woonzorgcomplex met 2 groepswoningen pg, 12 verzorgingsplaatsen, 12 appartementen, huisarts en apotheek
Architect
Kees Jongelie
Realisatie
2009
Locatie
Overdorp 6, Kockengen