Nieuwbouw Koptische Kerk Bussum

We zijn trots dat wij de architectuuropdracht mogen verzorgen voor de transformatie en inrichting van de Koptisch-Orthodoxe Kerk van de Heilige Maagd Maria en St. Verena in Bussum, in opdracht van het Koptisch-Orthodox Bisdom Nederland.
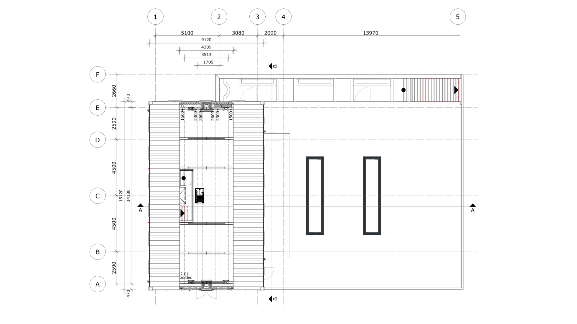
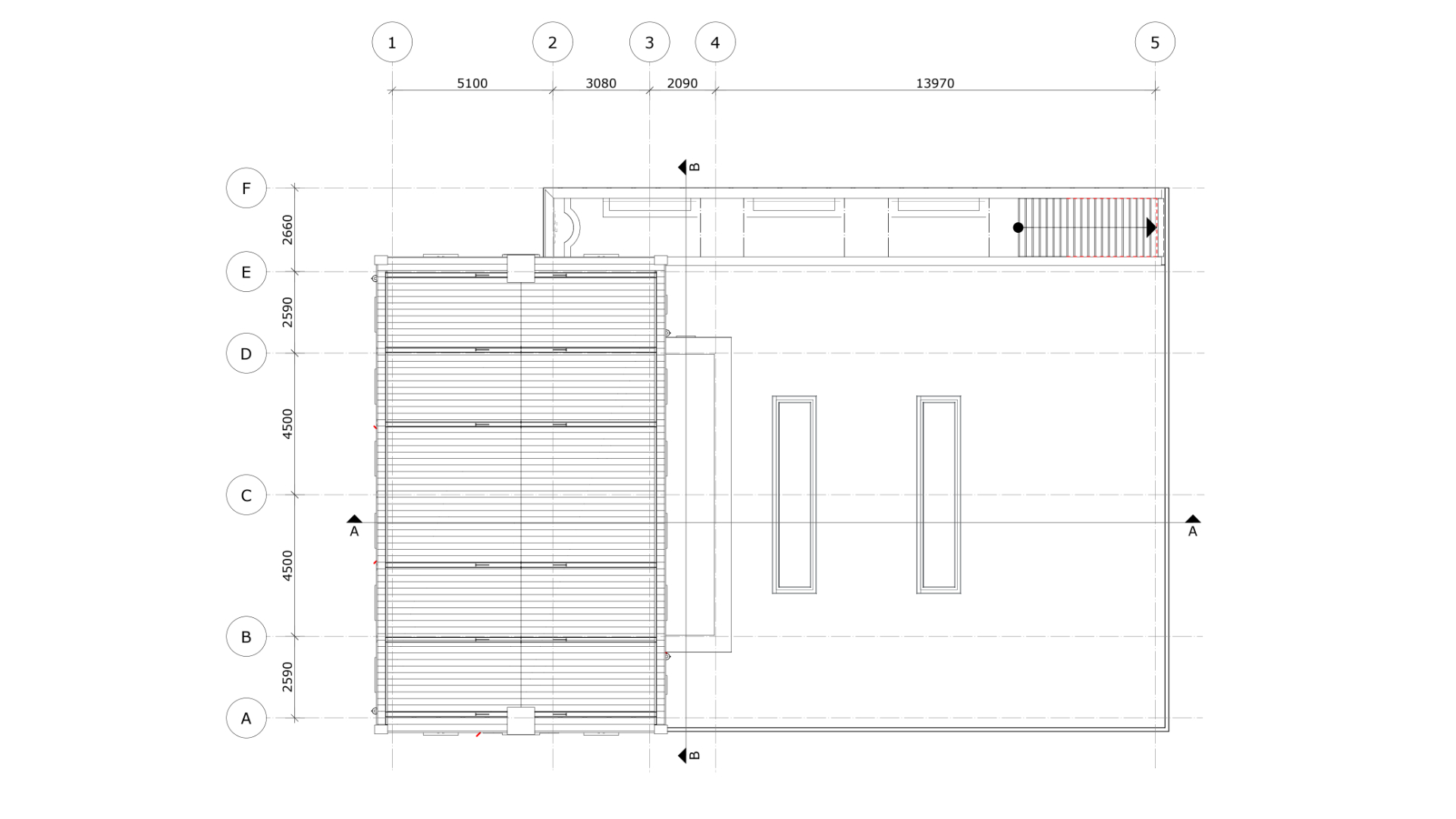
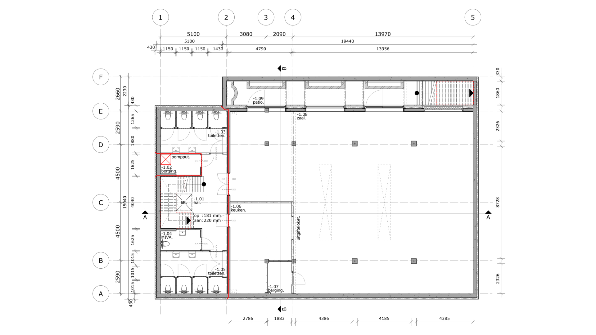
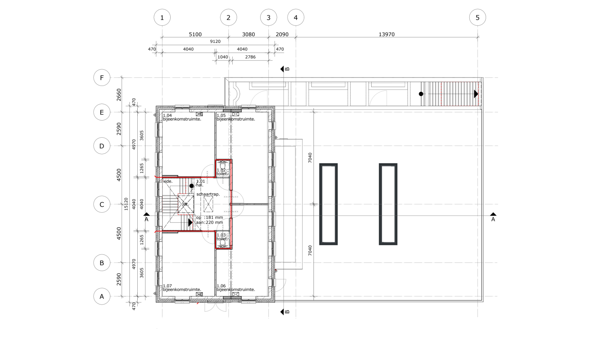
Deze kerk, gevestigd in het gemeentelijk monument uit 1953, combineert historisch karakter met spiritualiteit en culturele identiteit. Een belangrijk uitgangspunt is dat de nieuwbouw ondergeschikt blijft aan het hoofdgebouw; de kerk. Het bijzondere metselwerk is geïnspireerd op de bestaande bouw opgetrokken in Bossche School en een typerend Koptisch architectonisch element, de rondboog, is op de hoofdgevel veelvuldig toegepast, waarmee de nieuwbouw zowel representatief is
Status
In ontwikkeling
Opdrachtgever
Koptisch Orthodox Bisdom
Locatie
Laarderweg, Bussum