Nieuwbouw KC Op Zee Brede School Noordwijk aan Zee

“Leren in een rustig duinlandschap”
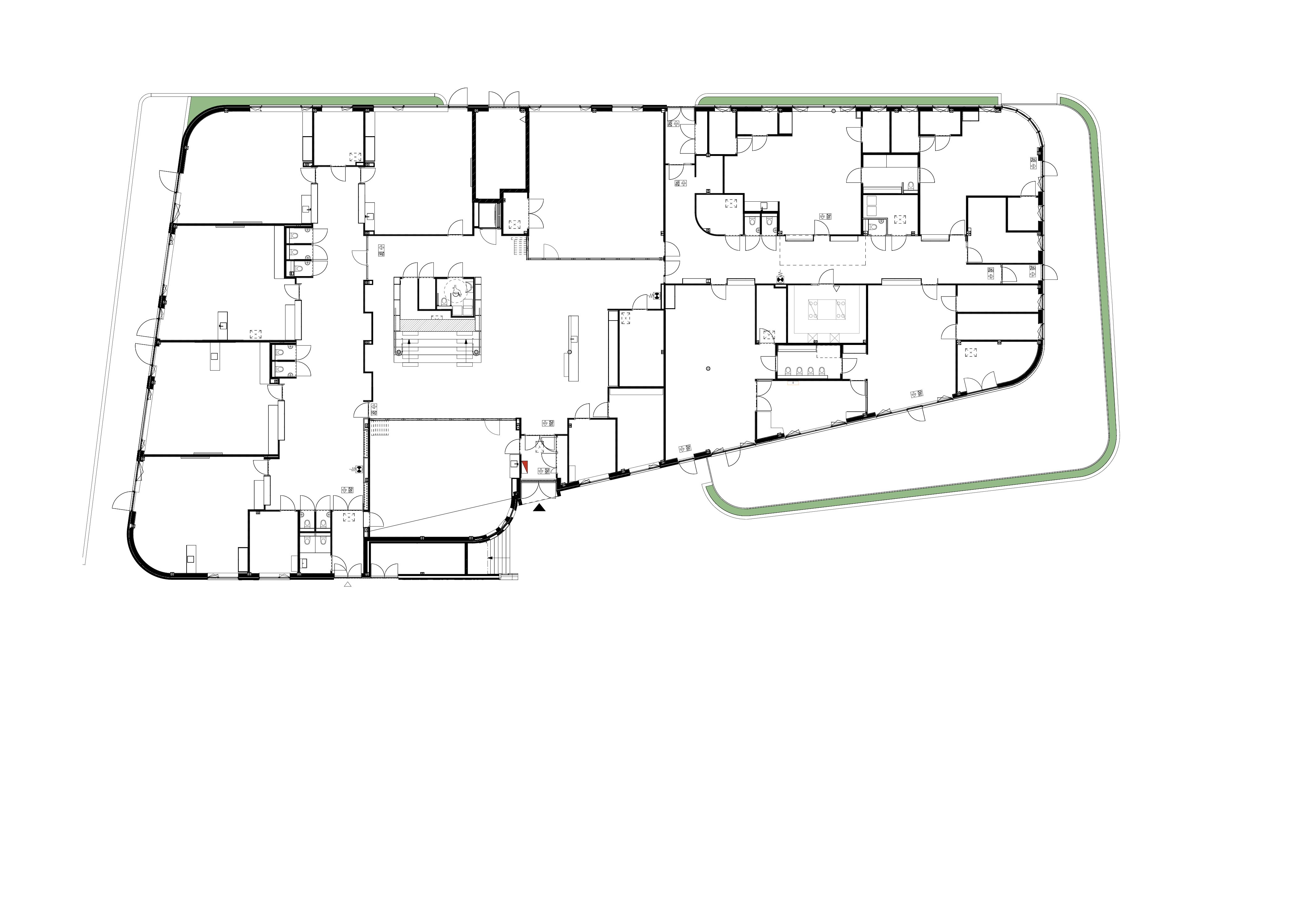
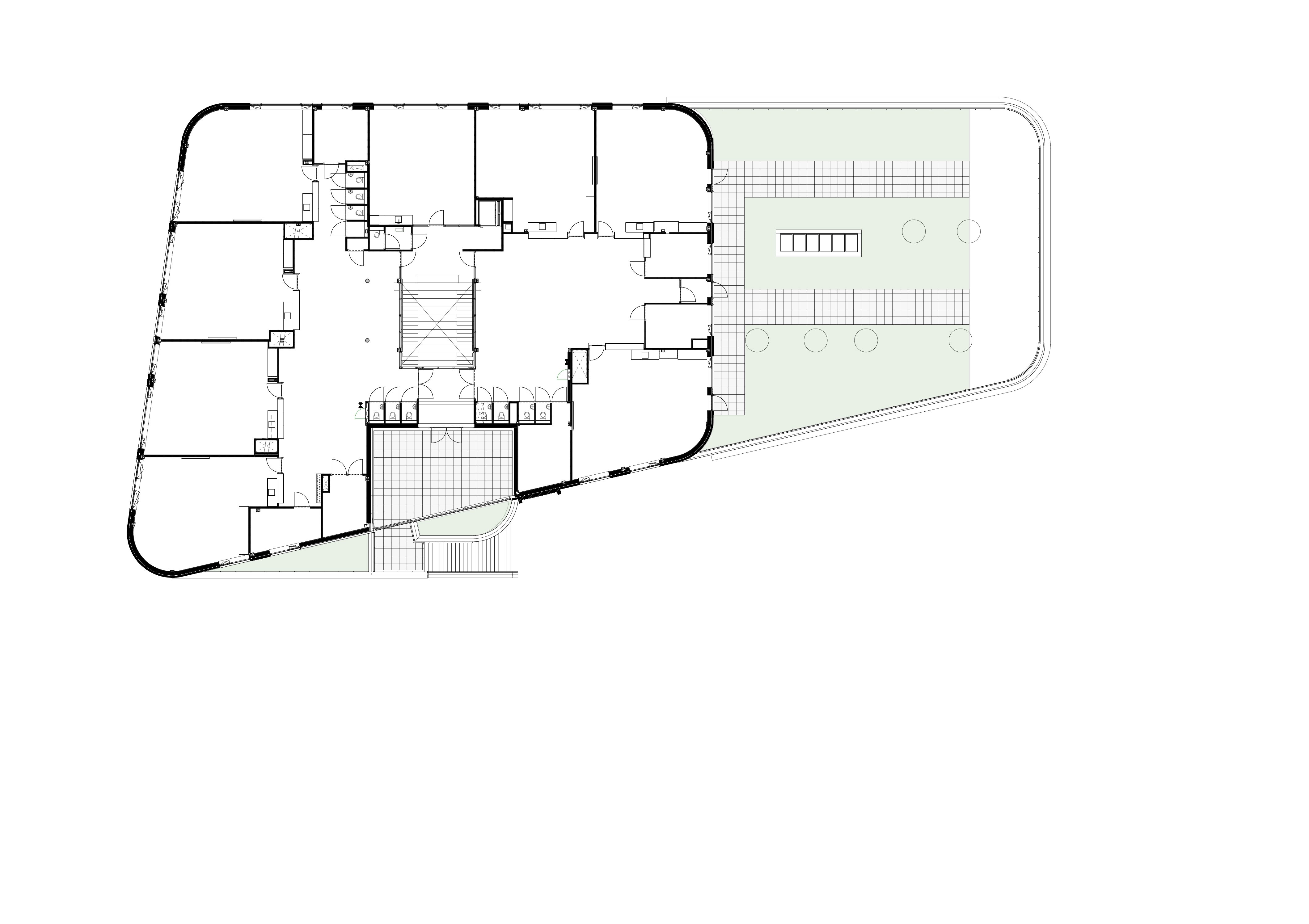
De nieuwbouw van KC op Zee in Noordwijk heeft een compacte opzet van circa 2.300 m² en biedt grote leerpleinen, een multifunctionele ruimte met tribunetrap en een speellokaal. Bijzonder zijn het dakterras en de groene patio die mogelijkheden bieden voor buitenonderwijs en spel. Het ontwerp sluit aan bij de identiteit van de omgeving: gele bakstenen, afgeronde hoeken en helmgras verwijzen naar het duinlandschap en de nabijheid van de zee.
Het gebouw is natuurinclusief ingericht en vormt door zorgvuldig ontworpen overgangen tussen binnen en buiten een eenheid met zijn omgeving. De hoofdentree springt in
Status
Opgeleverd
Opdrachtgever
Sophia Scholen
Omvang
Nieuwbouw brede school met 12 groepen, kinderdagverblijf en buitenschoolse opvang
Architect
Ronald de Rooij en Jasper de Wert
Realisatie
2024
Locatie
Noordwijk