Haalbaarheidsstudie 6 Torens

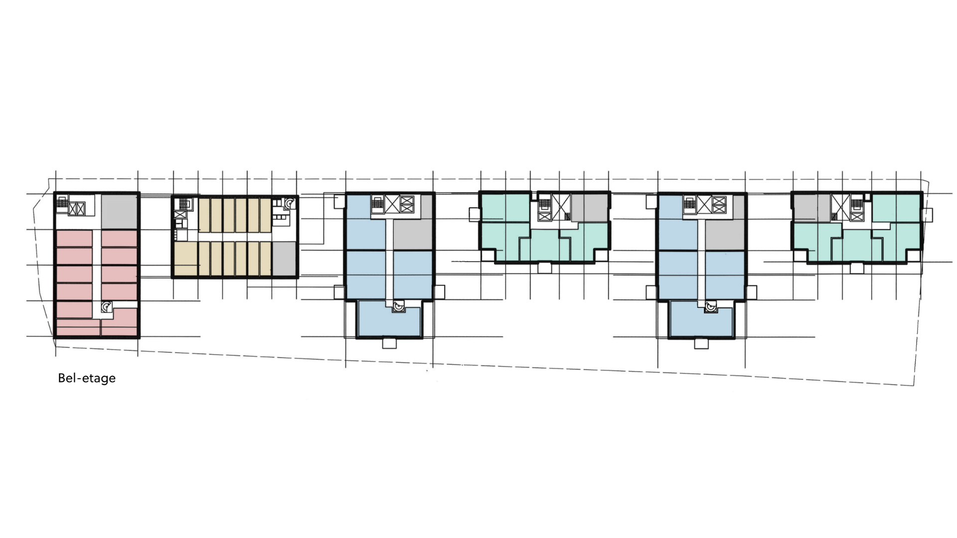
In opdracht van KondorWessels Projecten onderzoeken wij de mogelijkheden van woningbouw in een dichtstedelijk gebied. De 6 woongebouwen wisselen elkaar af in hoogte, en zijn voorzien van een parkeerkelder. Deze parkeerkelder is als talud ingepast in het ruimtelijk-landschappelijk beeld. De eerste woonlaag is als bel-etage opgelost, waardoor de hellingbanen voor de parkeergarage beduidend korter worden.
De verschillende programmaonderdelen zijn verdeeld over de 5 woongebouwen. Deze bestaat uit 1 woongebouw voor zelfstandige wooneenheden, 1 voor onzelfstandige wooneenheden, 2 voor middenhuur appartementen en 2 voor koopappartementen.
Status
Haalbaarheidsstudie
Opdrachtgever
KondorWessels Projecten
Omvang
416 appartementen, bestaande uit zelfstandige en onzelfstandige wooneenheden, middenhuur en vrije sector
Architect
Jasper de Wert